Tottenham Hale Urban Centre
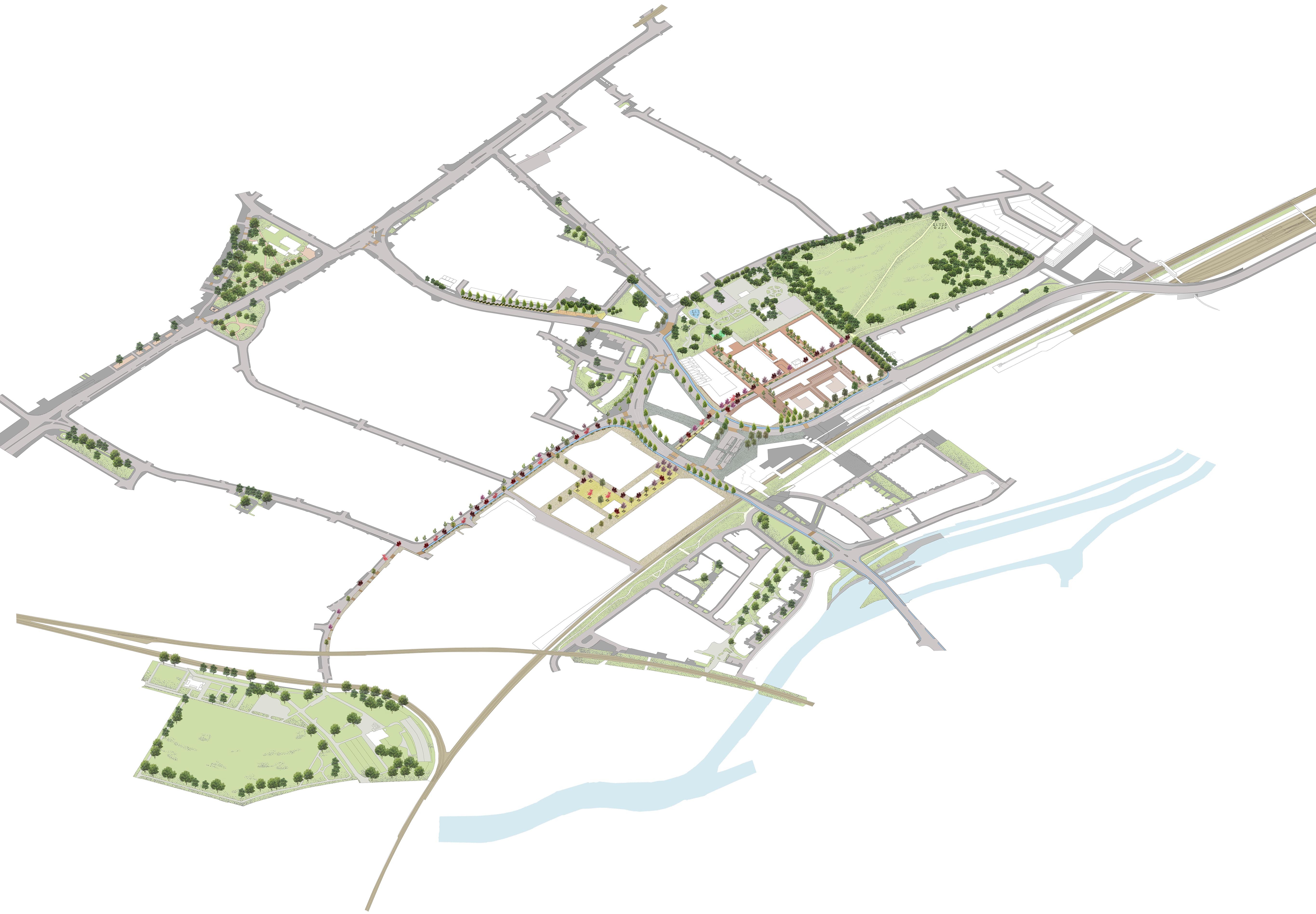
View all projectsOver a number of years, we have been working in Tottenham Hale, an incredibly diverse and well-connected east London urban centre set beside the open landscape of the Lea Valley Regional Park. A District Centre Framework seeks to guide development so that it takes place in a co-ordinated way and to the highest possible standard. An Integrated Interchange Concept and Urban Centre Masterplan aims to create a thriving, sustainable urban centre focused around a highly accessible public transport interchange. Our work has also set out a strategic framework for investment to manage and deliver the regeneration process in Tottenham Hale, through a context of partnership working.
- City
- London N17
- Use
- Mixed
- Client
- London Borough of Haringey, Greater London Authority and Transport for London, London Development Agency
- Status
- Completed





